90 876 Р 1 120 $ или 973

Информация об помещении

1
Этаж

Состояние и оснащение

Количество этажей
17
Развернуть
Агент
+7 (914) 127-70-38
Начать чат с агентом

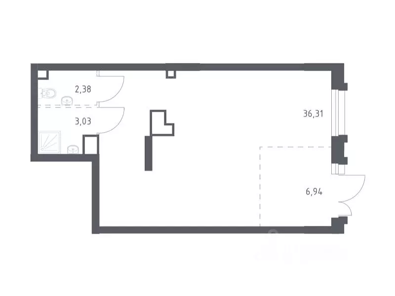
Помещение свободного назначения в Забайкальский край, Чита ...

Прямая аренда от застройщика - группы Самолет .Сдается помещение свободного назначения 48,66 кв.м на 1-м этаже ЖК Рябиновая Роща в строящемся корпусе 1.2. Срок сдачи: III Квартал 2026 года.Технические характеристики помещения: - Помещение свободного назначения с отдельным входом и витражным остеклением; - Высокий потолок от 3,8 м; - Свободная планировка; - Помещение обеспечено коммуникациями: электричество, отопление, водоснабжение, канализация; - Арендные каникулы для запуска Вашего бизнеса. Заключается долгосрочный договор аренды. Консультационное сопровождение технических вопросов и согласований на протяжении действия договора аренды. Дополнительная информация об объекте и презентация предоставляется по запросу.

Читать полностью
    Позвонить Написать
    90 876 Р1 120 $ или 973
    Агент
    +7 (914) 127-70-38
    Начать чат с агентом
    Похожие предложения
    Помещение свободного назначения в Свердловская область, Екатеринбург ... - Фото 1
    Помещение свободного назначения в Свердловская область, Екатеринбург ... - Фото 2
    ПРЕДЛАГАЕТСЯ в АРЕНДУ ПОМЕЩЕНИЕ свободного назначения общей площадью 90 кв. м Без комиссии для арендаторов. ОСНОВНЫЕ ХАРАКТЕРИСТИКИ И ПРЕИМУЩЕСТВА ПОМЕЩЕНИЯ: -расположено в центральной части города, рядом находится ЖК Макаровский, метро Динамо; -хорошая...
    • -1/5 эт.
    90 000 Р
    Агент
    +7 (912) Показать номер
    Посмотреть контакты
    Помещение свободного назначения в Удмуртия, Увинский район, пос. Ува ... - Фото 1
    Помещение свободного назначения в Удмуртия, Увинский район, пос. Ува ... - Фото 2
    Сдаются в аренду помещения на 3 этаже, площадью от 20 до 200 кв. м. Здание находится в самом центре села, вблизи администрации. Обеспечено всеми коммуникациями (электроснабжение, водоснабжение, канализация, отопление). Может быть использовано под офис,...
    • 3/3 эт.
    92 000 Р
    Агент
    +7 (912) Показать номер
    Посмотреть контакты
    Помещение свободного назначения в Московская область, Балашиха ... - Фото 1
    Помещение свободного назначения в Московская область, Балашиха ... - Фото 2
    Сдается в аренду нежилое помещение 137 кв.м. и прилегающая территория 1 000 кв.мТерритория огорожена забором с отдельным заездом.Есть электричество, вода и канализация.Стоимость аренды в месяц.По всем вопросам можете обращаться в любой день с 9.00 до...
    • 1/1 эт.
    90 000 Р
    Агент
    +7 (916) Показать номер
    Посмотреть контакты
    Помещение свободного назначения в Московская область, Ленинский ... - Фото 1
    Помещение свободного назначения в Московская область, Ленинский ... - Фото 2
    Номер в базе: 9904603.Сдаётся коммерческое помещение свободного назначения в ЖК Южная битца выгодное предложение для тех, кто ценит качество и потенциал * Продуманное пространство: 40.1 кв.м. с ремонтом и возможностью создать двухуровневое помещение...
    • 1/25 эт.
    90 000 Р
    Агент
    +7 (994) Показать номер
    Посмотреть контакты
    Помещение свободного назначения в Ленинградская область, Кировский ... - Фото 1
    Помещение свободного назначения в Ленинградская область, Кировский ... - Фото 2
    Сдаются 2 изолированных помещения свободного назначения 137 и 155 кв.м на 2 этаже в торговом комплексе в поселке городского типа Приладожский Кировского района, в самом центре поселка, рядом с Администрацией поселка. На 1 этаже располагается магазин...
    • 2/2 эт.
    90 000 Р
    Агент
    +7 (911) Показать номер
    Посмотреть контакты

    Не нашли подходящего объявления?

    Оставьте заявку, и наши риэлторы подберут псн в районе Читы

    (0)