Реализация объекта недвижимости приостановлена

Информация об помещении

1
Этаж

Состояние и оснащение

Количество этажей
9
Развернуть

Помещение свободного назначения в Забайкальский край, Чита ул. Бутина, ...

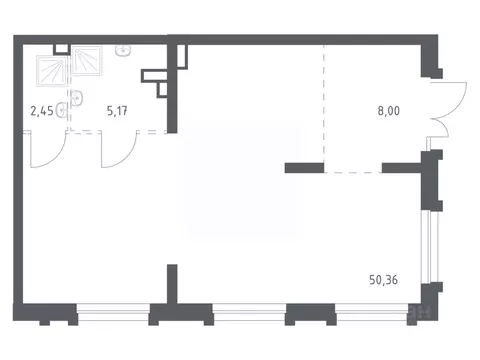
Планируете купить нежилое помещение? Помещение свободного назначения площадью 51.1 кв.м. с отдельным входомасположено на первой линии ул. Бутина, что гарантирует высокую проходимость и отличную видимость для потенциальных клиентов. Объект имеет отдельную входную группу и обладает всей необходимой инфраструктурой для начала или продолжения бизнеса: готовая мокрая точка и выделенная электрическая мощность 5 кВт. Высота потолков 2,55 метра создает комфортное пространство. Помещение исторически использовалось как успешная торговая точка по продаже сладостей, чая и кофе, что подтверждает его потенциал и формирует готовую клиентскую базу для нового владельца. Юридические вопросы прозрачны — один собственник и быстрый выход на сделку позволяют минимизировать временные затраты и оперативно вступить во владение готовым к работе активом. Это решение для тех, кто ценит выгодное расположение, проверенную концепцию и возможность начать бизнес без длительной подготовки. Отличный вариант офисного помещения, помещения для бьюти-сферы Остались вопросы? Звоните Показ в удобное время Код пользователя: 140335Номер в базе:

Читать полностью

    Реализация объекта недвижимости приостановлена

    Не нашли подходящего объявления?

    Оставьте заявку, и наши риэлторы подберут псн в районе Читы

    (0)