10 000 000 Р 130 500 $ или 110 900

Информация об помещении

1
Этаж

Состояние и оснащение

Количество этажей
5
Развернуть
Агент
+7 (914) 490-79-98
Начать чат с агентом

Помещение свободного назначения в Забайкальский край, Чита ...

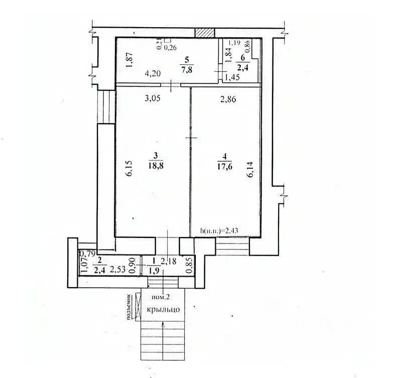
Продам коммерческое помещение, подходит под разные виды деятельности ведения бизнеса в центре города Описание: Торговое помещение площадью 91.8 с отдельным входом, расположенное в оживленном районе. Хорошее состояние. В помещении 3 комнаты, два - торговых, одно - складское. Окна помещения выходят во двор и на улицу.Отделка- косметическая. Наличие всех коммуникаций: электричество, вода, канализация, отопление, кондиционирование. Наличие парковки. Инфраструктура: Выгодное месторасположение, рядом городская больница. возможность ведения прибыльного бизнеса. отличная транспортная доступность, рядом остановки общественного транспорта.Характеристики: Помещение идеально подходит для различных видов бизнеса: магазинов одежды, химии, продуктов, салонов красоты и т. д. Доп. информация: Продажа срочная, торг, без обременений и долгов. Заинтересовал объект- звоните Один взрослый собственник, документы в порядке.Покупая квартиру с Федеральным союзом риэлторов Полезным Люди , вы получаетепроверенный объект, юридически чистый,юридическое сопровождение сделки.Специалист по недвижимости Евсеева Татьяна ВсеволодовнаАрт.

Читать полностью
    Позвонить Написать
    10 000 000 Р130 500 $ или 110 900
    Агент
    +7 (914) 490-79-98
    Начать чат с агентом
    Похожие предложения
    Помещение свободного назначения в Забайкальский край, Чита Царский ... - Фото 1
    Помещение свободного назначения в Забайкальский край, Чита Царский ... - Фото 2
    Отличное Предложение Продаётся помещение свободного назначения с высокой проходимостью в новом районе города. Подойдёт под большинство видов коммерческой деятельности.Удобное расположение, с отдельным входом и парковкой.Выполнен качественный ремонт.Возможен...
    • 1/9 эт.
    10 500 000 Р
    Агент
    +7 (914) Показать номер
    Посмотреть контакты
    Помещение свободного назначения в Забайкальский край, Чита просп. ... - Фото 1
    Помещение свободного назначения в Забайкальский край, Чита просп. ... - Фото 2
    Планируете купить помещение для бизнеса? Нежилое помещение площадью 50.9 кв.м с дизайнерским ремонтом и готовыми центральными коммуникациями расположено на первой линии проспекта Советов в Железнодорожном районе Читы. Объект обладает высокой транспортной...
    • 1/9 эт.
    10 500 000 Р
    Агент
    +7 (914) Показать номер
    Посмотреть контакты
    Помещение свободного назначения в Забайкальский край, Чита ул. ... - Фото 1
    Помещение свободного назначения в Забайкальский край, Чита ул. ... - Фото 2
    Код объекта: 1952887.Недорого продается помещение 130 кв.м. в центре города.Продаётся коммерческое помещение свободного назначения по адресу: Амурская улица, 81 (расположена рядом с Прокуратурой Забайкальского края).Этот просторный объект общей площадью...
    • 2/3 эт.
    9 800 000 Р
    Агент
    +7 (929) Показать номер
    Посмотреть контакты
    Помещение свободного назначения в Забайкальский край, Чита ул. 9 ... - Фото 1
    Помещение свободного назначения в Забайкальский край, Чита ул. 9 ... - Фото 2
    Двухэтажное здание , центральный район ,удобная локация, центральное отопление, во дворе парковка, нет водоснабжения и канализации, есть возможность подключить.
    • 2/2 эт.
    9 000 000 Р
    Агент
    +7 (914) Показать номер
    Посмотреть контакты
    Помещение свободного назначения в Забайкальский край, Чита Северный ... - Фото 1
    Помещение свободного назначения в Забайкальский край, Чита Северный ... - Фото 2
    Продается помещение свободного назначения общей площадью 73,3 кв. м, расположенное на первом этаже жилого дома по адресу: Северный, 32, помещение 1.Объект имеет 2 отдельных входа с улицы, оборудованный двумя двойными дверями: внешняя металлическая и внутренняя...
    • 1/5 эт.
    11 000 000 Р
    Агент
    +7 (914) Показать номер
    Посмотреть контакты

    Не нашли подходящего объявления?

    Оставьте заявку, и наши риэлторы подберут псн в районе Читы

    (0)