9 000 000 Р 117 200 $ или 100 600

Информация о квартире

50 м2
Площадь
27 м2
Жилая
7 м2
Кухня
2
Комнаты
3
Этаж
9
Этажность

Дополнительная информация

Тип дома
кирпичный
Развернуть
Агент
+7 (914) 801-02-94
Начать чат с агентом

2-к кв. Забайкальский край, Чита ул. Журавлева, 16 (50.6 м)

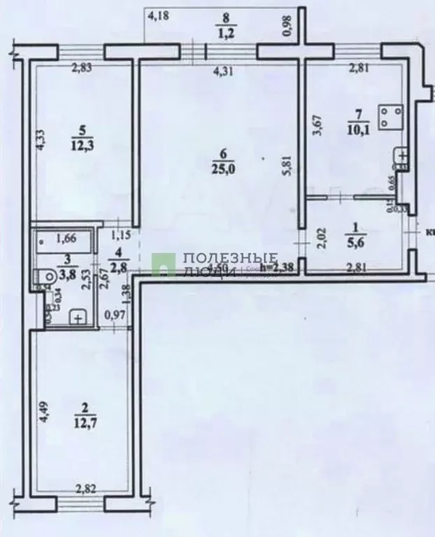
Код объекта: 1930079.Продаётся двухкомнатная квартира в Чите по адресу: улица Журавлёва, 16. Квартира расположена на третьем этаже девятиэтажного кирпичного дома 1984 года постройки.Общая площадь квартиры составляет 50,6 кв. м, из которых 27,4 кв. м — жилая площадь, 7,7 кв. м — кухня. Высота потолков — 2,5 м. В квартире косметический ремонт, комнаты изолированные, окна выходят на улицу. Также есть одна лоджия.Расположение квартиры угловое. Установлено центральное отопление, перекрытия железобетонные. В квартире один раздельный санузел.Это отличное предложение для тех, кто ищет комфортное жильё в спокойном районе.Мы гарантируем безопасную сделку и юридическую поддержку нашим клиентам. Поможем одобрить ипотеку с сниженной ставкой.

Читать полностью

    Для того, чтобы купить двухкомнатную квартиру по адресу: Чита, Центральный, ул. Журавлева, 16, позвоните по телефону +7 (914) 801-02-94. Торопитесь! Объявление №30092100840 о продаже двухкомнатной квартиры опубликовано Вчера.

    Позвонить Написать
    9 000 000 Р117 200 $ или 100 600
    Агент
    +7 (914) 801-02-94
    Начать чат с агентом
    Похожие предложения
    3-к кв. Забайкальский край, Чита Каштакский мкр, 1А (66.1 м) - Фото 1
    3-к кв. Забайкальский край, Чита Каштакский мкр, 1А (66.1 м) - Фото 2
    3-комнатная квартира, общая площадь 66м², жилая 42м², кухня 9м²

    Код объекта: 1930149.id:6469. Продается трёхкомнатная квартира с мебелью и бытовой техникой Удобная планировка: все комнаты раздельные, просторная кухня, застекленная лоджия, раздельный сан. узел, окна выходят на две стороны, не угловая, в подъезде отделена...
    • 66 м²
    • 3-ком
    • 1/10 эт.
    • панельный
    9 000 000 Р
    Агент
    +7 (914) Показать номер
    Посмотреть контакты
    2-к кв. Забайкальский край, Чита ул. Ленина, 151к1 (62.1 м) - Фото 1
    2-к кв. Забайкальский край, Чита ул. Ленина, 151к1 (62.1 м) - Фото 2
    2-комнатная квартира, общая площадь 62м², жилая 30м², кухня 15м²

    Код объекта: 1887795.id:5951. id:5951 В связи с заключением другой сделки продаётся тёплая, солнечная, уютная квартира с хорошим ремонтом в центре города. Окна выходят на обе стороны. Вся необходимая инфраструктура в шаговой доступности. Квартира находится...
    • 62 м²
    • 2-ком
    • 10/10 эт.
    • монолит
    9 000 000 Р
    Агент
    +7 (914) Показать номер
    Посмотреть контакты
    3-к кв. Забайкальский край, Чита ул. Красной Звезды, 26 (74.0 м) - Фото 1
    3-к кв. Забайкальский край, Чита ул. Красной Звезды, 26 (74.0 м) - Фото 2
    3-комнатная квартира, общая площадь 74м², жилая 50м², кухня 10м²

    Продаётся просторная 3-х комнатная квартира в отличном районе.Описание: 3 - х комнатная квартира, в кирпичном доме 1985 года;Расположена в чистом районе города;Тихие соседи, чистый подъезд;Светлая, солнечная квартира; (окна выходят на 2 стороны)Доступность...
    • 74 м²
    • 3-ком
    • 4/5 эт.
    • панельный
    8 950 000 Р
    Агент
    +7 (914) Показать номер
    Посмотреть контакты
    3-к кв. Забайкальский край, Чита ул. Подгорбунского, 5 (66.4 м) - Фото 1
    3-к кв. Забайкальский край, Чита ул. Подгорбунского, 5 (66.4 м) - Фото 2
    3-комнатная квартира, общая площадь 66м², жилая 39м², кухня 9м²

    Код объекта: 1887678.id:5423. id:5423 Продается уютная трехкомнатная квартира в Чите, расположенная по адресу: улица Подгорбунского, дом 5. Квартира находится на 4-м этаже 10-этажного панельного дома, построенного в 1991 году. Высота потолков - 2,6 метра....
    • 66 м²
    • 3-ком
    • 4/10 эт.
    • панельный
    9 100 000 Р
    Агент
    +7 (914) Показать номер
    Посмотреть контакты
    3-к кв. Забайкальский край, Чита Каштакский мкр, 1А (66.1 м) - Фото 1
    3-к кв. Забайкальский край, Чита Каштакский мкр, 1А (66.1 м) - Фото 2
    3-комнатная квартира, общая площадь 66м², жилая 42м², кухня 9м²

    Код объекта: 1930149.id:6469. Продается трёхкомнатная квартира с мебелью и бытовой техникой Удобная планировка: все комнаты раздельные, просторная кухня, застекленная лоджия, раздельный сан. узел, окна выходят на две стороны, не угловая, в подъезде отделена...
    • 66 м²
    • 3-ком
    • 1/10 эт.
    • панельный
    9 000 000 Р
    Агент
    +7 (914) Показать номер
    Посмотреть контакты

    Не нашли подходящего объявления?

    Оставьте заявку, и наши риэлторы подберут квартиру в районе Читы

    (0)